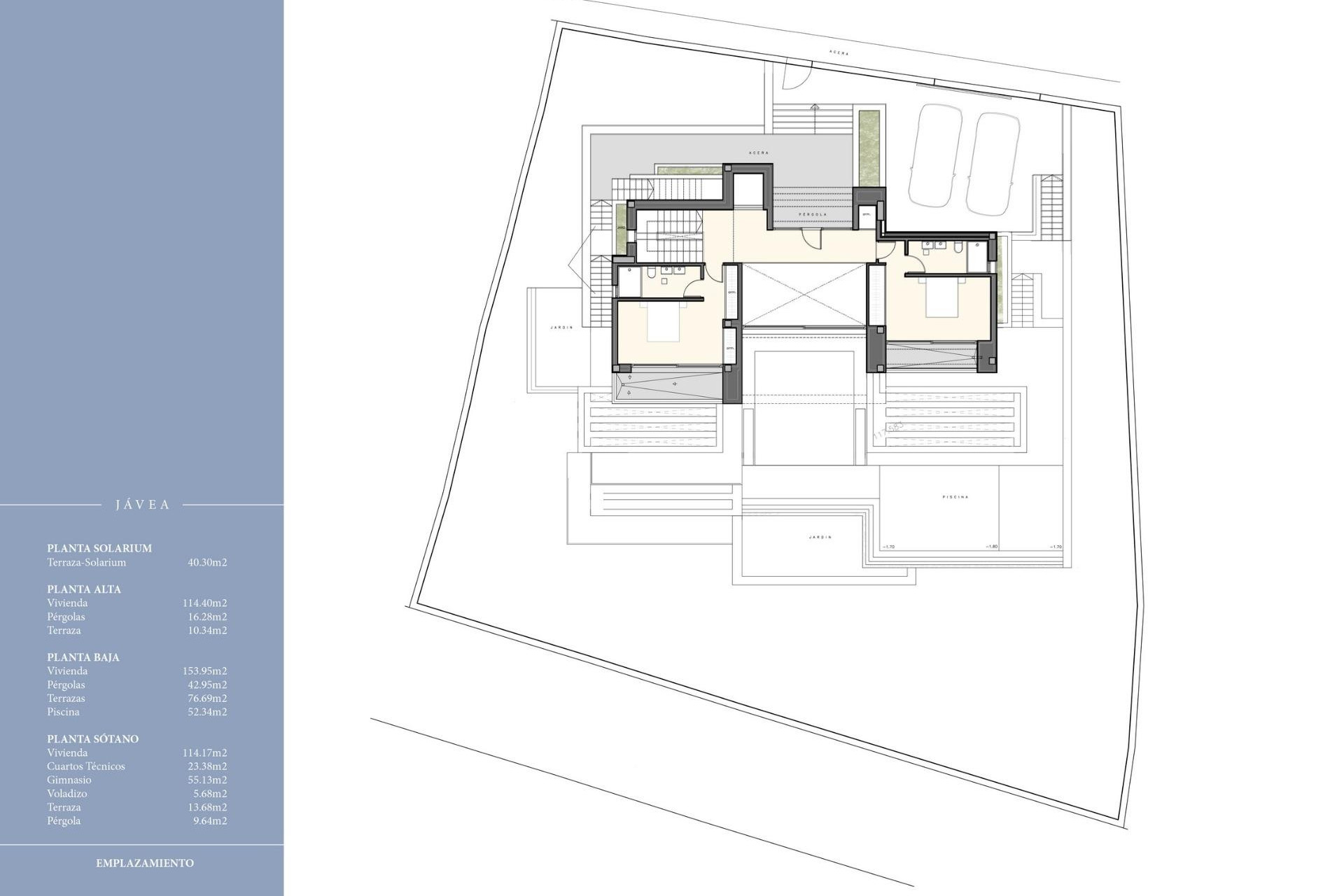
Villa de luxe neuve avec vue sur la mer près de la plage de Granadella à Jávea Villa exclusive dans le prestigieux quartier de Granadella à Jávea Découvrez une villa de luxe exceptionnelle actuellement en construction dans le quartier très prisé de Granadella à Jávea, sur la Costa Blanca du Nord. Située dans un environnement naturel paisible, à côté du parc forestier protégé et à quelques pas de la célèbre Cala Granadella, cette propriété offre une combinaison rare d'intimité, de vues spectaculaires sur la mer et de proximité avec l'une des plus belles criques d'Espagne. Javea est réputée pour son littoral époustouflant, sa charmante vieille ville et son excellent climat tout au long de l'année. La ville offre un mode de vie dynamique avec des restaurants internationaux, des ports de plaisance, des terrains de golf et un large éventail d'activités de plein air. Son mélange de charme méditerranéen et de services modernes en fait l'une des destinations les plus prisées de la Costa Blanca, tant pour une résidence permanente que pour des maisons de vacances de luxe. Architecture moderne avec des espaces de vie spacieux Cette élégante villa design est implantée sur un terrain généreux de 925 m² et offre une surface construite impressionnante d'environ 677 m² répartie sur trois niveaux. L'architecture contemporaine s'intègre parfaitement au paysage naturel environnant tout en maximisant la lumière naturelle et les vues panoramiques. La propriété comprend quatre chambres spacieuses, cinq salles de bains et des toilettes pour invités. De grands espaces de vie ouverts communiquent naturellement avec les terrasses extérieures, créant un cadre de vie lumineux et confortable, conçu pour un style de vie méditerranéen moderne. La villa comprend également un bureau privé, une salle de sport entièrement équipée, des pièces de rangement et un parking couvert pour deux véhicules. Un ascenseur relie les différents niveaux de la maison pour un maximum de commodité et d’accessibilité. Vues panoramiques sur la mer et vie en plein air L'un des atouts les plus impressionnants de la propriété est son espace extérieur. La villa offre environ 140 m² de terrasses ouvertes qui offrent des vues spectaculaires sur la mer Méditerranée et les montagnes environnantes. La piscine à débordement surplombe le littoral et la plage voisine de Granadella, créant un cadre unique pour se détendre et profiter de la beauté naturelle de la région. Le jardin paysager, agrémenté d'arbres et doté d'un système d'arrosage automatique, renforce encore l'atmosphère paisible de la propriété. Finitions haut de gamme et domotique La villa est construite avec des matériaux de haute qualité et les dernières technologies de construction pour garantir confort, sécurité et efficacité énergétique. Piscine à débordement avec vue sur la mer Ascenseur reliant tous les niveaux Cuisine design équipée d'appareils électroménagers NEFF Chauffage au sol dans toute la propriété Système de climatisation centralisé avec thermostats AIRZONE indépendants Système domotique NIESSEN Free Home pour le contrôle de l'éclairage et des stores Stores motorisés dans toute la villa Vidéophone et pré-installation pour un système d'alarme Jardin paysager avec système d'irrigation Ces caractéristiques offrent un environnement moderne, confortable et sécurisé, conçu pour une vie de luxe. Emplacement de choix à proximité des plages et des commodités Cala Granadella 0,3 km Plage de l'Arenal 7 km Golf de La Sella 18 km Denia 20 km Aéroport d'Alicante-Elche 100 km Aéroport de Valence 120 km Acquérez votre villa de luxe à Javea Cette villa exceptionnelle offre un design contemporain, une vue imprenable sur la mer et un emplacement de choix à proximité de l'une des plus belles plages de la Costa Blanca. Contactez-nous dès aujourd'hui pour obtenir plus d'informations ou organiser une visite privée et découvrir votre future demeure de luxe à Javea. 501