Très grand terrain à bâtir de plus de 40 000 m² à Yecla. Le terrain présente plusieurs niveaux et offre une vue imprenable sur les montagnes environnantes. Il dispose d'un raccordement à l'eau d'irrigation et à l'électricité, inclus dans le prix. Ce terrain est tout à fait exceptionnel car il comprend déjà un plan de maison inclus dans le prix.
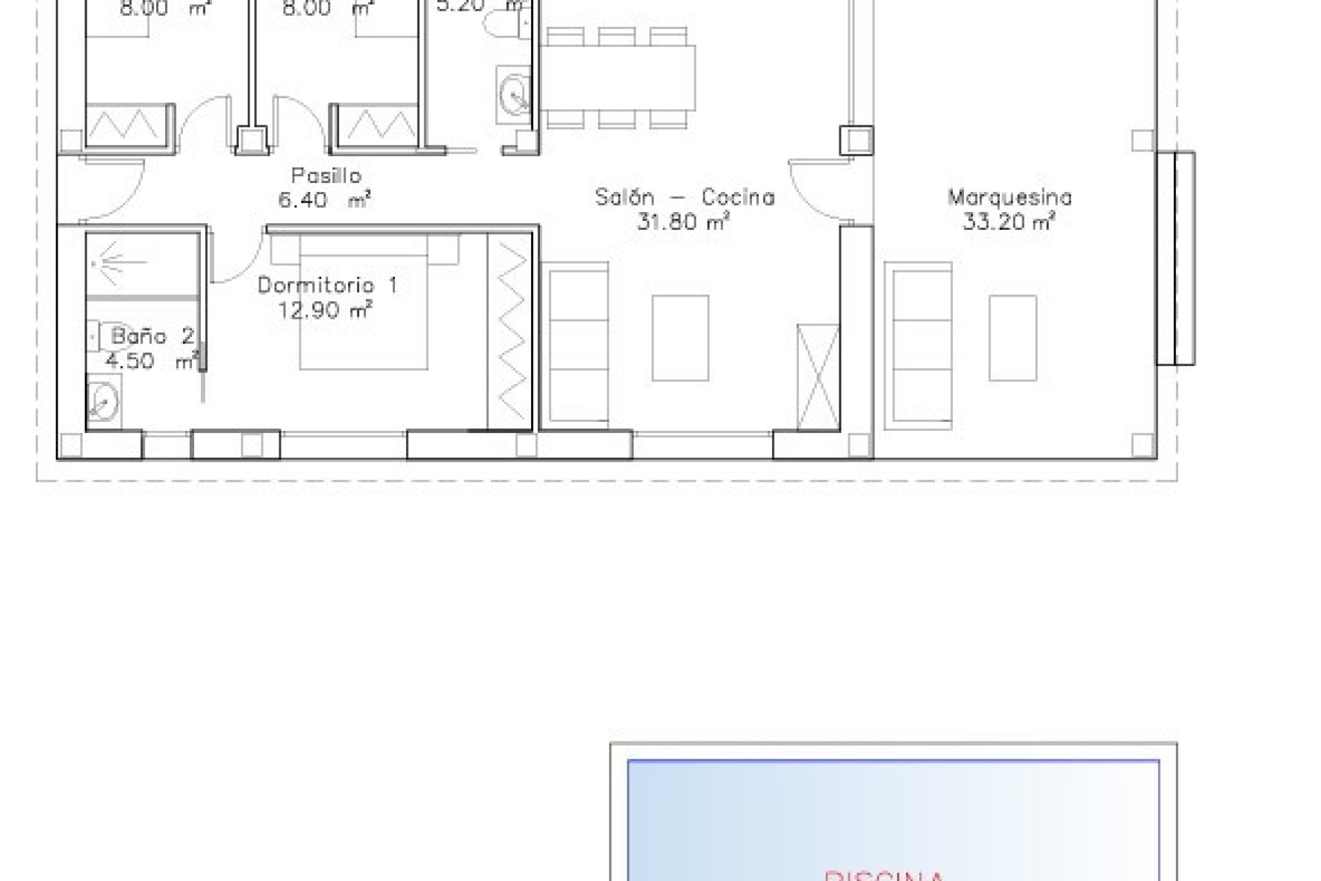
Le projet prévoit une maison comprenant 3 chambres, 2 salles de bains, une cuisine ouverte sur le salon, un porche couvert et une piscine de 4 x 8 m.
Nous travaillons avec plusieurs constructeurs à Yecla ; une maison comme celle-ci peut être construite pour environ 250 000 euros.
Vous pouvez également acheter le terrain sans le plan de la maison pour 52 000 euros.