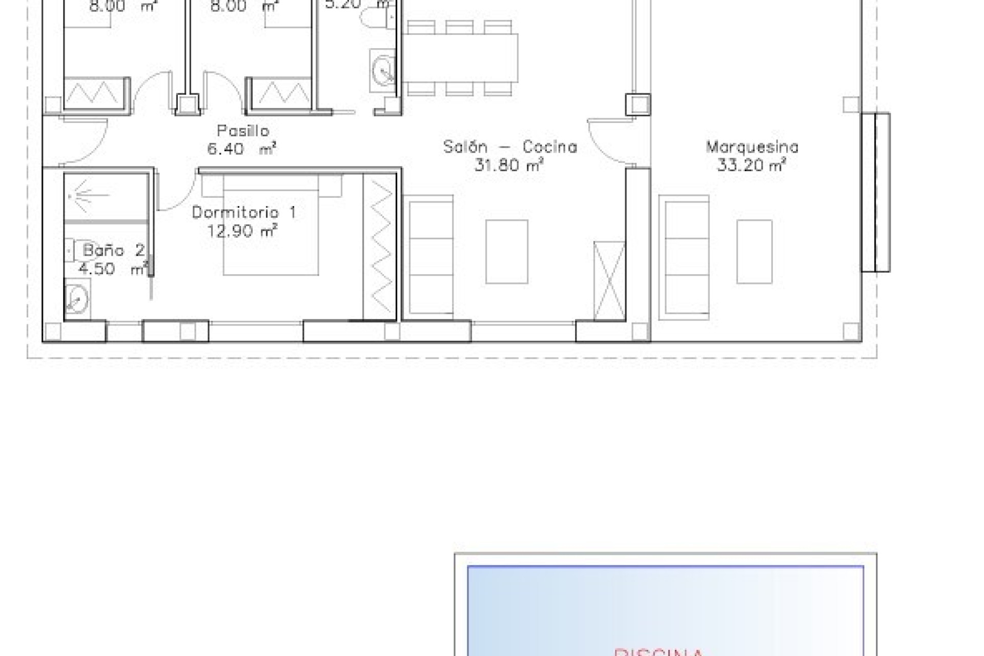
Zeer groot bouwperceel van meer dan 40.000 m² in Yecla. Het perceel heeft verschillende niveaus en biedt een prachtig uitzicht op de omliggende bergen. Een aansluiting op het irrigatiewaternet en elektriciteit zijn bij de prijs inbegrepen. Dit perceel is extra bijzonder omdat er al een ontwerp voor een huis bij de prijs is inbegrepen.
Het ontwerp omvat een woning met 3 slaapkamers, 2 badkamers, een open keuken en woonkamer, een overdekte veranda en een zwembad van 4 x 8 m.
We werken samen met verschillende aannemers in Yecla; een huis als dit kan worden gebouwd voor ongeveer 250.000 euro.
U kunt het perceel ook zonder het huisontwerp kopen voor 52.000 euro.