Alicante · Orihuela Costa Plat · Nieuwbouw

Prijs €187.500

Alicante · Orihuela Costa Plat · Nieuwbouw

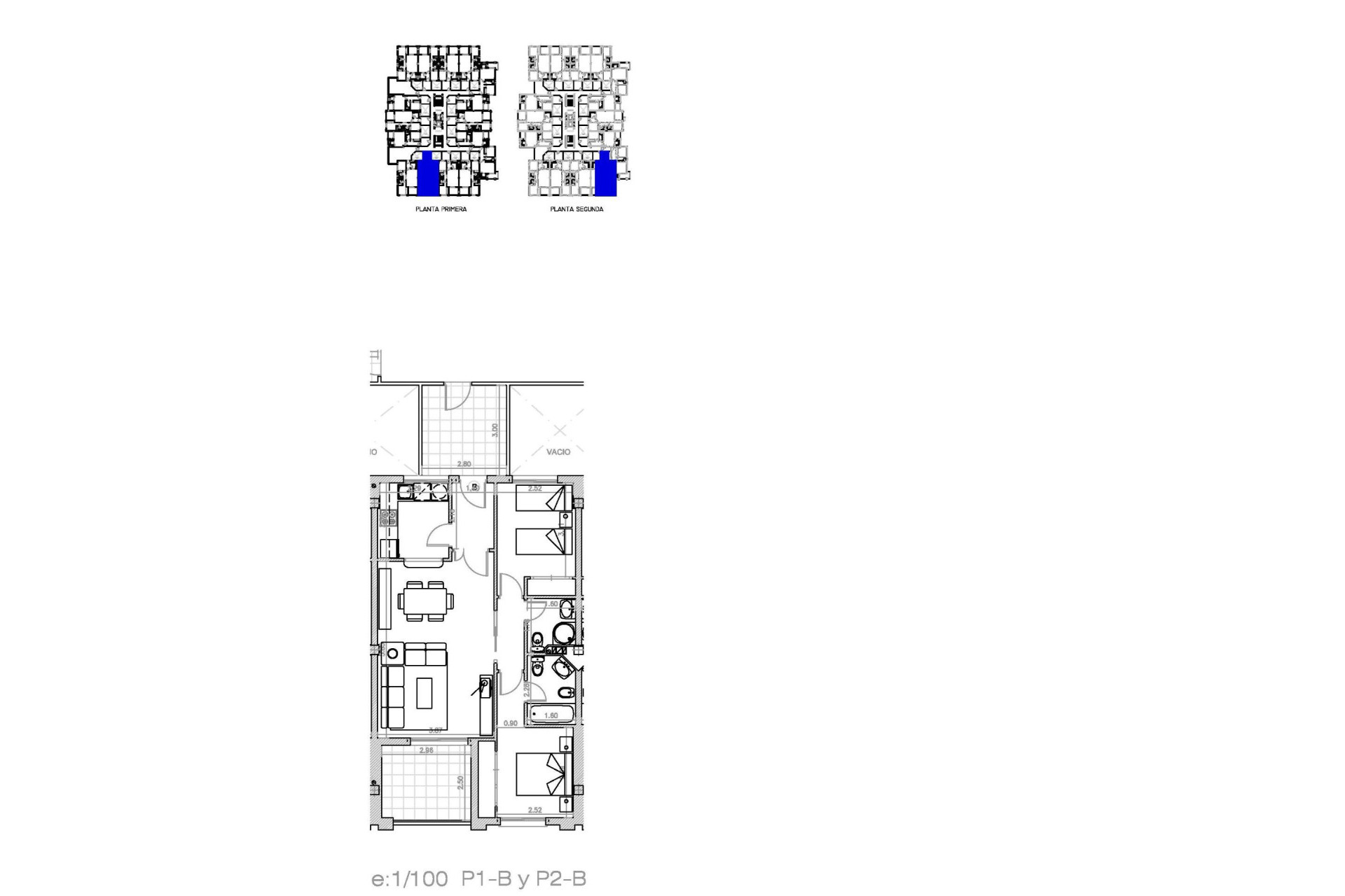
Gerenoveerd wooncomplex in Lomas de Cabo Roig - Gerenoveerde appartementen Ref. 51077

  • 69m2
  • 2
  • 2
  • Ja

Kaart

WhatsApp