Alicante · Torrevieja Plat · Nieuwbouw Ref. 47958

Prijs €290.000

Alicante · Torrevieja Plat · Nieuwbouw Ref. 47958

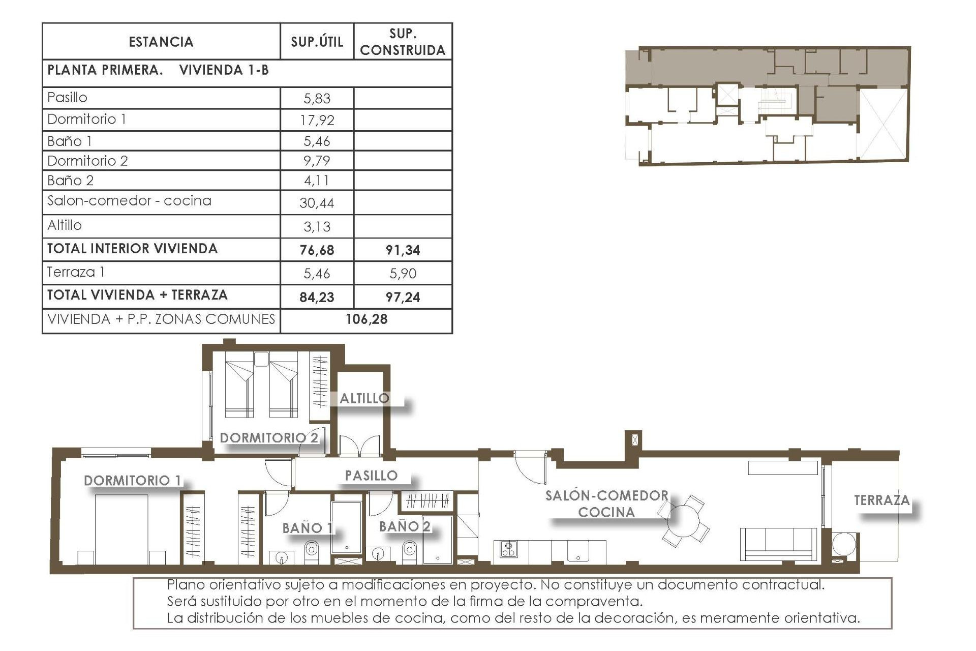
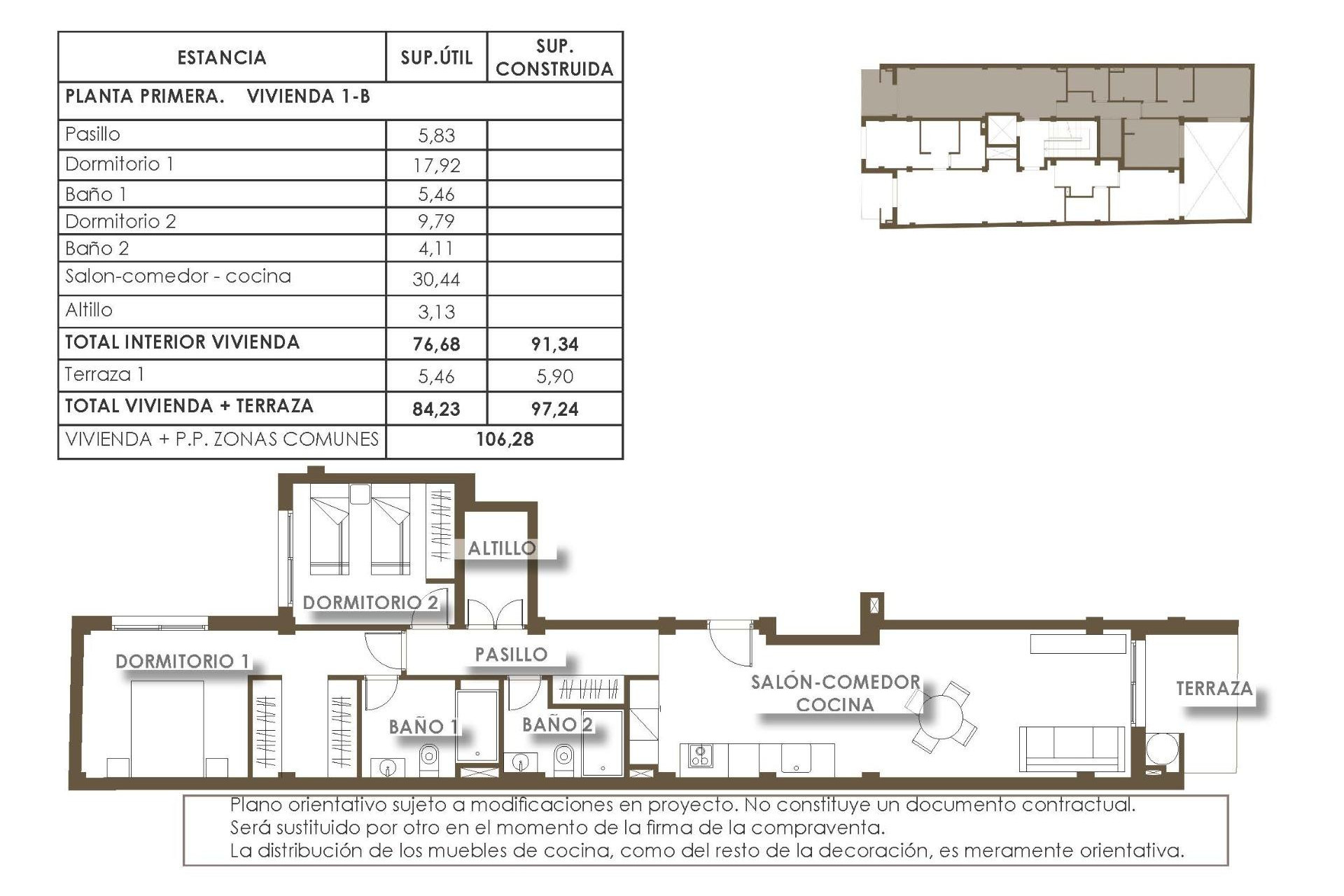
  • 91m2
  • 2
  • 2
  • Ja

Kaart

WhatsApp